Ricerca rapida
-
-
CERCA

Castellina Marittima
Villa con 4 camere due bagni garage 90mq e giardino 200mq

Villa

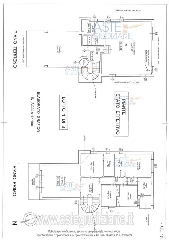
Castellina Marittima: proponiamo asta di una villa al piano terreno e primo, composta da ampia abitazione con ingresso al piano terreno e i restanti vani al piano primo; vi è poi un’estesa autorimessa con adiacenti due locali accessori.

Le case dei sogni Vi seguira' in ogni fase dalla visita della casa alla consegna personale delle chiavi. Le immagini che trovate sono prese dei migliori portali italiani realizzate per conto del tribunale dal ctu incaricato a periziare l'immobile.
Qualsiasi informazione dell'immobili in ASTA, dalla parte TECNICA, BUROCRATICA, a quella delle FOTO, verranno date solo in agenzia previo appuntamento, ma non per telefono tantomeno per mail. Se interessati contattare l'agenzia CON LE CASE DEI SOGNI I TUOI DESIDERI DIVENTANO REALTA’

Caratteristiche

Codice
T80CAST231
Prezzo
116.121,00 EUR
Mq
513
Classe
C
Locali
8
Camere
4
Bagni
2
Box
1
Mq Box
90
Posti auto
4
Mq Giardino
200
Stato Immobile
Buono
Grado
Signorile
Posizione
Centro
Panorama
Vista Giardino
Orientamento
Nord Est
Lati Liberi
3
Giardino
Privato
Arredi
Possibilità
Tipo Soggiorno
Doppio
Tipo Cucina
Abitabile
Riscaldamento
Autonomo
Tipo Riscaldam.
Caldaia a Condensazione
Tipo Impianto
Radiatori
Fonte Energetica
Metano
Acqua Calda
Autonoma

MAPPA

Via della Repubblica 18, Castellina Marittima (PI)
Richiedi informazioni
Codice:
Nominativo: *
Telefono: *
Email: *
Dettagli richiesta: *
Autorizzo il trattamento dei miei dati personali in base Regolamento UE n. 679/2016 - Privacy Policy
Invia
Cookie preference